Добро пожаловать на http://vipplan.ru

Випплан Когалым - это тысячи проектов домов в нашем каталоге!

Вы всегда сможете найти для себя проект дома вашей мечты! Даже если этого не случилось, мы готовы в любую минуту предложить проект индивидуального дома.

Забыли пароль?
Вы еще не регистрировались?

Перейдите по ссылке ниже на страницу регистрации.

Регистрация...

Внимание!!!

В проектную документацию могут быть внесены изменения любой сложности, в соответствии в Вашими пожеланиями!

Полезные статьи

Выбор сайдинга

Прежде чем купить сайдинг, нужно определиться зачем он нужен: для защиты фасада от непогоды, для придания привлекательности внешнему виду дома или для утепления дома.Что же из себя представляет сайдинг? Сайдинг – это материал для облицовки фасада из компаунда. В данной статье мы поможем Вам определиться выбором сайдинга для отделки фасада дома...

Установка систем вентиляции

Проектирование и установка систем вентиляции начинается на этапе создания проекта дома, в котором, наряду с газо- и электрификацией, водоснабжением и системой канализации, проектируется система вентиляции...

Проекты домов и коттеджей > Каталог проектов домов > Уютный коттедж с мансардой Vg1486

Уютный коттедж с мансардой Vg1486

Уютный коттедж с мансардой
Зарегистрируйтесь

Проект № Vg1486


Техническое описание
Общая площадь: 163.9 м2
Жилая площадь: 89.24 м2
Высота здания: 8.78 м
Размеры дома: 11.14м×9.64м
Цокольный этаж: нет
Гараж: нет
Мансарда: есть

Kонструкция
Фундамент: Свайно-ростверковый
Перекрытия: Деревянные балки
Материал стен: Газобетон

Архитектурный раздел
Конструктивный раздел
Инженерный раздел
АР+КР - 56 000 (Со скидкой 20%)
АР+КР+ИР - 113 400 (Со скидкой 50%)
Проект индивидуального одноэтажного жилого дома с мансардой, размерами 11,14 х 9,64 м. Наружная отделка здания – камень. Цоколь – клинкерная плитка. Кровля – металлочерепица. Фундамент – свайно-ростверковый (буронабивной). Наружные стены: газобетонные блоки, штукатурка, клинкерная плитка. Внутренние стены и перегородки – газобетонные блоки и каркасные с ГКЛ. Отделка вентканалов и дымоходов – штукатурка. Перемычки – из U-образного газобетонного блока и сварные из профиля проката. Пол первого этажа – пол по грунту. Межэтажное перекрытие - по деревянным балкам с использованием теплошумоизоляционных материалов типа «URSA» в межбалочном пространстве. Крыша двускатная. Окна металлопластиковые, выполненные по индивидуальному заказу.
Генплан застройки участка / Паспорт проекта 7000 руб / 10000 руб
Инженерный раздел (полный) 57400 руб (82000 руб)
Смета на строительство 41000 руб
Теплотехнический расчет материалов стен Бесплатно
Стоимость проекта со незначительнми изменениями 65900 руб
Стоимость проекта со средними изменениями* 78200 руб
Стоимость проекта со значительными изменениями** 81500 руб

План первого этажа


Прихожая — 4,84 м2
Холл — 7,45 м2
Гостиная — 27,60 м2
Кухня — 9,98 м2
Кладовая — 2,13 м2
С/у — 1,48 м2
Бойлерная — 8,61 м2
Гараж — 18,43 м2

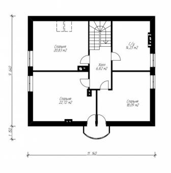
План мансардного этажа


Холл — 6,82 м2
Спальня — 20,83 м2
Спальня — 22,72 м2
С/у — 14,23 м2
Спальня — 18,09 м2
Уютный коттедж с мансардой Уютный коттедж с мансардой Уютный коттедж с мансардой Уютный коттедж с мансардой

Модификации проектов

Внесение изменений и привязка к участку строительства

В любой из проектов от компании VIPplan - Когалым по вашему желанию могут быть внесены изменения в материалы стен, материалы наружной отделки дома, а также будет произведена адаптация проекта под конкретный регион строительства (с учетом грунтов региона, геологических особенностей вашего участка и местных климатических условий) - БЕСПЛАТНО !!! (кроме проектов со скидкой и проектов наших партнеров).

Любой из проектов, размещенных на сайте kogalyim.vipplan.ru мы можем выполнить из требуемых вам строительных материалов: ячеистый бетон (газобетон, пеноблок), керамоблок, кирпич, шлакоблок, бетонный блок, дерево (брус, клееный брус), каркасная технология (деревянный каркас, металлокаркас (ЛСТК)).

Фасад дома и его наружную отделку так же возможно выполнить с применением различных облицовочных материалов: структурной штукатурки, (с утеплителем и без), сайдингом (пластиковый или металлосайдинг), фиброплитами, кирпича.

 
6 Избранные
проекты

Доставка проектов по России: Москва (Московская область), Санкт-Петербург (Ленинградская область), Краснодар, Ростов-на-Дону, Ставрополь, Сочи, Волгоград, Новосибирск, Белгород, Брянск, Воронеж, Саратов, Хабаровск, Астрахань, Нальчик, Владикавказ, Екатеринбург, Тюмень, Самара, Нижний Новгород, Казань, Пермь, Уфа, Челябинск, Красноярск, Ханты-Мансийск, Иркутск, Курган, Оренбург, Омск, Томск, Барнаул, Новокузнецк, Кемерово, Абакан, Чита, Якутск, Южно-Сахалинск, Петропавловск-Камчатский и страны ближнего зарубежья: Белоруссия, Украина, Казахстан