Добро пожаловать на http://vipplan.ru

Випплан Когалым - это тысячи проектов домов в нашем каталоге!

Вы всегда сможете найти для себя проект дома вашей мечты! Даже если этого не случилось, мы готовы в любую минуту предложить проект индивидуального дома.

Забыли пароль?
Вы еще не регистрировались?

Перейдите по ссылке ниже на страницу регистрации.

Регистрация...

Внимание!!!

В проектную документацию могут быть внесены изменения любой сложности, в соответствии в Вашими пожеланиями!

Полезные статьи

Приготовление раствора для наливного пола

Если вы хотите чтобы пол получился ровным, наливные полы – лучший вариант. Особое внимание следует уделить приготовлению раствора. А все потому, что после нанесения на цементную стяжку или бетонное основание внести коррективы или изменить что-либо уже не получится. Поэтому к замешиванию раствора стоит подходить очень внимательно....

Уклон кровли дома

Чтобы вода быстрее уходила с кровли Вашего дома, скатам необходимо придать уклон, который выражающийся в процентах или градусах и измеряющийся геодезическими инструментами. Уклон кровли обозначает угол наклона ската к горизонту. Чем больше уклон, тем круче крыша. У новомодных зданий наклон кровли делают не очень большим....

Проекты домов и коттеджей > Каталог проектов домов > Проект дома с каменными колоннами Vg2340

Проект дома с каменными колоннами Vg2340

Проект дома с каменными колоннами
Зарегистрируйтесь

Проект № Vg2340


Техническое описание
Общая площадь: 178.33 м2
Жилая площадь: 94.49 м2
Высота здания: 8.61 м
Размеры дома: 11.96м×14.36м
Кол-во комнат: 6
Цокольный этаж: нет
Гараж: нет
Мансарда: есть

Kонструкция
Фундамент: ленточный из блоков ФБС
Перекрытия: сборные ж/б плиты
Материал стен: Кирпич

Архитектурный раздел
Конструктивный раздел
АР+КР - 60 000 (Со скидкой 20%)
Модель проекта индивидуального одноэтажного жилого дома смансардой с размерами здания 11,96 x 14,36 м. Наружная отделка здания – штукатурка, камень. Фундамент – ленточный из блоков ФБС под несущими стенами Наружные стены – забутовочный кирпич. Внутренние стены – забутовочный кирпич. Перегородки – забутовочный кирпич. Пол 1 этажа - пол по грунту. Межэтажное перекрытие - сборные ж/б плиты. Крыша многоскатная. Кровля – битумная черепица. Окна — металлопластиковые.
Генплан застройки участка / Паспорт проекта 7000 руб / 10000 руб
Инженерный раздел (полный) 89000 руб
Смета на строительство 44500 руб
Теплотехнический расчет материалов стен Бесплатно
Стоимость проекта со незначительнми изменениями 70550 руб
Стоимость проекта со средними изменениями* 83900 руб
Стоимость проекта со значительными изменениями** 87500 руб

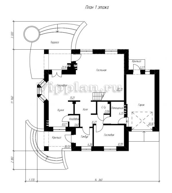
План первого этажа


Тамбур — 4,36 м2
Кладовая — 1,6 м2
Холл — 8,27 м2
С/у — 2,06 м2
Гостевая — 8,99 м2
Помещение — 4,13 м2
Гостиная — 27,71 м2
Столовая — 11,21 м2
Кухня — 8,07 м2
Гараж — 20,57 м2

План мансардного этажа


Холл — 5,16 м2
Спальня — 17,18 м2
Гардероб — 3,75 м2
Спальня — 9,96 м2
Спальня — 16,25 м2
С/у — 10,67 м2
Помещение — 14,4 м2
Балкон — 1,74 м2
Балкон — 0,51 м2
Балкон — 1,74 м2
Проект дома с каменными колоннами Проект дома с каменными колоннами Проект дома с каменными колоннами Проект дома с каменными колоннами

Модификации проектов

Внесение изменений и привязка к участку строительства

В любой из проектов от компании VIPplan - Когалым по вашему желанию могут быть внесены изменения в материалы стен, материалы наружной отделки дома, а также будет произведена адаптация проекта под конкретный регион строительства (с учетом грунтов региона, геологических особенностей вашего участка и местных климатических условий) - БЕСПЛАТНО !!! (кроме проектов со скидкой и проектов наших партнеров).

Любой из проектов, размещенных на сайте kogalyim.vipplan.ru мы можем выполнить из требуемых вам строительных материалов: ячеистый бетон (газобетон, пеноблок), керамоблок, кирпич, шлакоблок, бетонный блок, дерево (брус, клееный брус), каркасная технология (деревянный каркас, металлокаркас (ЛСТК)).

Фасад дома и его наружную отделку так же возможно выполнить с применением различных облицовочных материалов: структурной штукатурки, (с утеплителем и без), сайдингом (пластиковый или металлосайдинг), фиброплитами, кирпича.

 
6 Избранные
проекты

Доставка проектов по России: Москва (Московская область), Санкт-Петербург (Ленинградская область), Краснодар, Ростов-на-Дону, Ставрополь, Сочи, Волгоград, Новосибирск, Белгород, Брянск, Воронеж, Саратов, Хабаровск, Астрахань, Нальчик, Владикавказ, Екатеринбург, Тюмень, Самара, Нижний Новгород, Казань, Пермь, Уфа, Челябинск, Красноярск, Ханты-Мансийск, Иркутск, Курган, Оренбург, Омск, Томск, Барнаул, Новокузнецк, Кемерово, Абакан, Чита, Якутск, Южно-Сахалинск, Петропавловск-Камчатский и страны ближнего зарубежья: Белоруссия, Украина, Казахстан