Добро пожаловать на http://vipplan.ru

Випплан Когалым - это тысячи проектов домов в нашем каталоге!

Вы всегда сможете найти для себя проект дома вашей мечты! Даже если этого не случилось, мы готовы в любую минуту предложить проект индивидуального дома.

Забыли пароль?
Вы еще не регистрировались?

Перейдите по ссылке ниже на страницу регистрации.

Регистрация...

Внимание!!!

В проектную документацию могут быть внесены изменения любой сложности, в соответствии в Вашими пожеланиями!

Полезные статьи

Правильная изоляция подвала

Какой выбрать материал, как правильно выполнить работу, перед началом изоляции подвала какие подготовительно-строительные работы следует провести и какой момент играет правильное выполнение работ. Последние несколько лет придали много хлопот жильцам домов, увлажнив им подвалы. Этот период показал насколько важно обеспечить надлежащую защиту зданий от грунтовых вод и воздействия влаги....

Проект дома

Строительство дома начинается с подготовительного этапа, основной частью которого является проект. Разработка дизайнерского проекта сопровождается оформлением документов после выбора участка....

Проекты домов и коттеджей > Каталог проектов домов > Аккуратный дом с мансардой Vg999

Аккуратный дом с мансардой Vg999

Аккуратный дом с мансардой
Зарегистрируйтесь

Проект № Vg999


Техническое описание
Общая площадь: 141 м2
Жилая площадь: 71 м2
Высота здания: 9 м
Размеры дома: 12м×12м
Кол-во комнат: 4
Цокольный этаж: нет
Гараж: нет
Мансарда: нет

Kонструкция
Фундамент: Ленточный
Перекрытия: Деревянные балки
Материал стен: Газобетон

Архитектурный раздел
Конструктивный раздел
АР+КР - 52 000 (Со скидкой 20%)
Проект индивидуального одноэтажного жилого дома с мансардой размерами здания 7,78 x 9,78 м. Наружная отделка здания : облицовочный кирпич двух оттенков. Фундамент – ленточный из блоков ФБС (под несущими стенами). Наружные стены: газобетонные блоки , минеральная вата, воздушный зазор, облицовочный кирпич. Внутренние стены - из газобетонных блоков. Перегородки газобетонные блоки и каркасные с ГКЛ. Снаружи вентканалы и дымоходы отделываются клинкерной плиткой. Перемычки - монолитные и сварные из профиля проката. Пол первого этажа - пол по грунту. Пол мансарного этажа — деревянные балки. Кровля — битумная черепица. Окна - металлопластиковые, выполненные по индивидуальному заказу.
Генплан застройки участка / Паспорт проекта 7000 руб / 10000 руб
Инженерный раздел (полный) 70500 руб
Смета на строительство 35250 руб
Теплотехнический расчет материалов стен Бесплатно
Стоимость проекта со незначительнми изменениями 61450 руб
Стоимость проекта со средними изменениями* 72100 руб
Стоимость проекта со значительными изменениями** 74900 руб

План первого этажа


Тамбур - 4,50 м2
Коридор - 5,68 м2
Холл - 5,85 м2
Гостиная - 20,68 м2
Кухня - 8,75 м2
Бойлерная - 3,86 м2
С/у - 2,66 м2

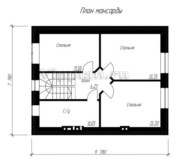
План мансардного этажа


Холл - 4,21 м2
Спальня - 11,55 м2
Спальня - 13,75 м2
Спальня - 13,70 м2
С/у - 8,05 м2
Аккуратный дом с мансардой Аккуратный дом с мансардой Аккуратный дом с мансардой Аккуратный дом с мансардой

Модификации проектов

Внесение изменений и привязка к участку строительства

В любой из проектов от компании VIPplan - Когалым по вашему желанию могут быть внесены изменения в материалы стен, материалы наружной отделки дома, а также будет произведена адаптация проекта под конкретный регион строительства (с учетом грунтов региона, геологических особенностей вашего участка и местных климатических условий) - БЕСПЛАТНО !!! (кроме проектов со скидкой и проектов наших партнеров).

Любой из проектов, размещенных на сайте kogalyim.vipplan.ru мы можем выполнить из требуемых вам строительных материалов: ячеистый бетон (газобетон, пеноблок), керамоблок, кирпич, шлакоблок, бетонный блок, дерево (брус, клееный брус), каркасная технология (деревянный каркас, металлокаркас (ЛСТК)).

Фасад дома и его наружную отделку так же возможно выполнить с применением различных облицовочных материалов: структурной штукатурки, (с утеплителем и без), сайдингом (пластиковый или металлосайдинг), фиброплитами, кирпича.

 
6 Избранные
проекты

Доставка проектов по России: Москва (Московская область), Санкт-Петербург (Ленинградская область), Краснодар, Ростов-на-Дону, Ставрополь, Сочи, Волгоград, Новосибирск, Белгород, Брянск, Воронеж, Саратов, Хабаровск, Астрахань, Нальчик, Владикавказ, Екатеринбург, Тюмень, Самара, Нижний Новгород, Казань, Пермь, Уфа, Челябинск, Красноярск, Ханты-Мансийск, Иркутск, Курган, Оренбург, Омск, Томск, Барнаул, Новокузнецк, Кемерово, Абакан, Чита, Якутск, Южно-Сахалинск, Петропавловск-Камчатский и страны ближнего зарубежья: Белоруссия, Украина, Казахстан